この物件の募集は終了しました。

HEISEI33ビルの過去掲載物件情報

千葉県柏市4丁目

常磐線「柏」駅徒歩3分

東武野田線「柏」駅徒歩3分

常磐緩行線「柏」駅徒歩3分

所在地
千葉県柏市4丁目
築年
1980年7月(築45年)
交通

常磐線」駅 徒歩3分

東武野田線」駅 徒歩3分

常磐緩行線」駅 徒歩3分

物件の特徴

  • エレベーター

基本情報

物件名
HEISEI33ビル
向き
-
種別/構造
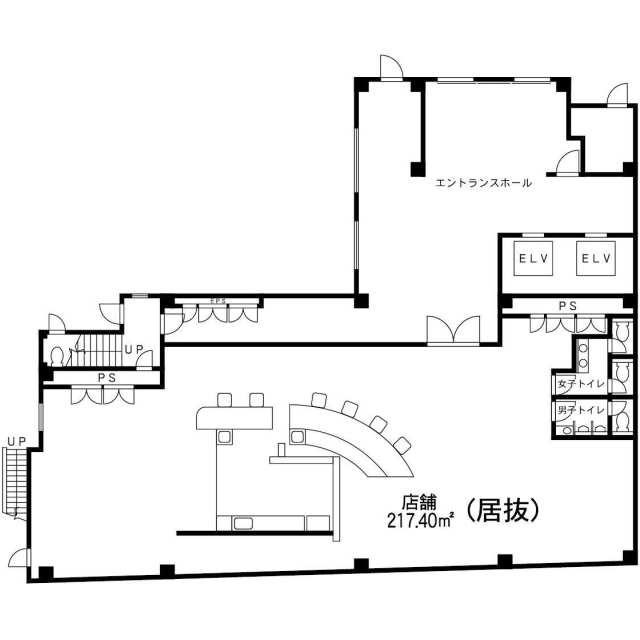
店舗一部/鉄筋コンクリート
築年月
1980年7月(築45年)
総戸数
-
所在地
千葉県柏市4丁目
交通

常磐線」駅 徒歩3分

東武野田線」駅 徒歩3分

常磐緩行線」駅 徒歩3分

設備条件

設備条件
  • スケルトン渡し
  • 物販向け
  • エレベーター
設備(その他)
    -

近隣の物件

  1. 柏市末広町

    - (23.40㎡)

    6万円

  2. 柏市南柏1丁目

    1LDK (98.93㎡)

    44万円

  3. 柏市南柏1丁目

    1K (20.40㎡)

    5.17万円

  4. 柏市中央2丁目

    - (40.87㎡)

    16.5万円

よく見られている物件

  1. 柏市柏2丁目

    - (217.40㎡)

    130.21万円

  2. 我孫子市我孫子1丁目

    - (87.30㎡)

    23.24万円

  3. 柏市中央2丁目

    - (40.87㎡)

    16.5万円

  4. 柏市中央1丁目

    - (5.50㎡)

    5.5万円

HEISEI33ビル

お気軽にお問い合わせください

無料お問い合わせ

K&M不動産

04-7144-5106

9:00~20:00

(休:水曜日)